Виды и условия применения
Опорные плиты используются для создания устойчивых оснований под колодцы, что делает их важным элементом в строительстве подземных коммуникаций и инженерных систем. Разновидности:
- Под водопроводные колодцы — для установки водопроводных шахт, обеспечивая защиту конструкции от просадки и деформаций.
- Для канализационных систем — служат надёжным основанием для канализационных колодцев, выдерживая постоянные нагрузки и предотвращая смещение конструкции.
- Опорные элементы для дренажных систем — используются в системах отвода грунтовых вод и осадков, создавая надёжное основание на нестабильных грунтах.
- Плиты для технических сооружений — для обустройства смотровых шахт и других технических объектов, обеспечивают долговечность и прочность всей конструкции.
Производство опорных плит на заводе ЖБИ-Маркет
На нашем заводе производство опорных плит осуществляется с использованием высококачественного бетона и арматуры. В процессе изготовления бетон заливается в пресс-формы, где плиты приобретают нужные параметры и прочностные характеристики. После этого изделия проходят обязательный контроль на соответствие прочности и долговечности.
Характеристики
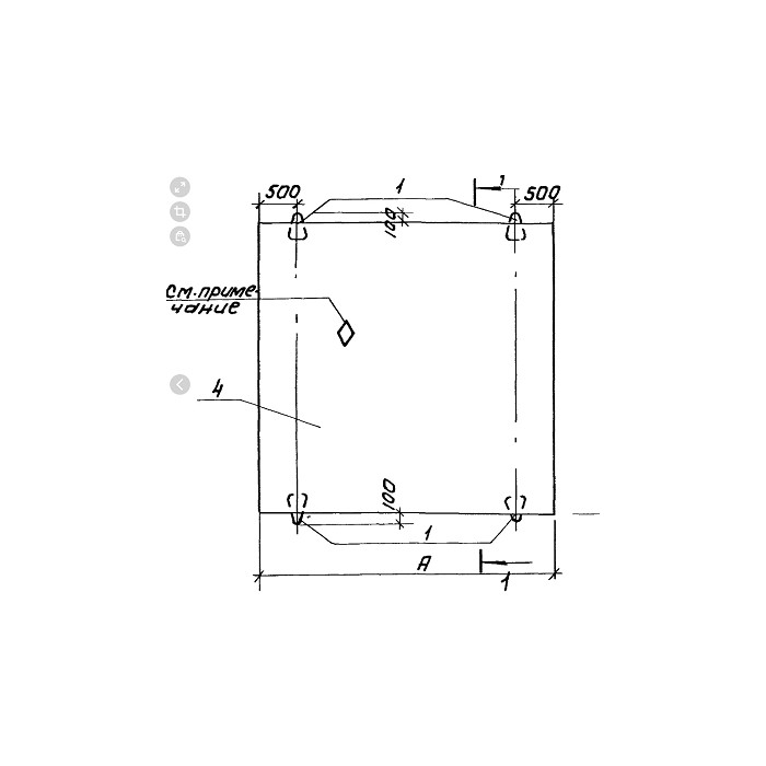
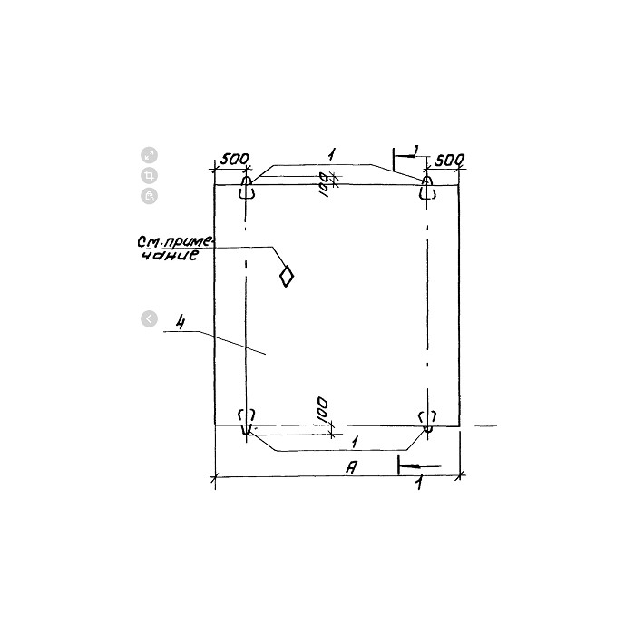
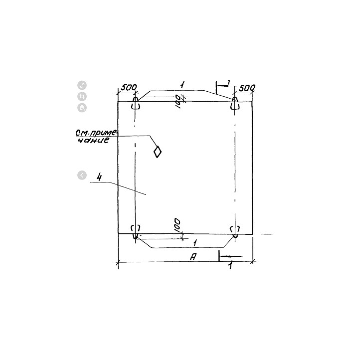
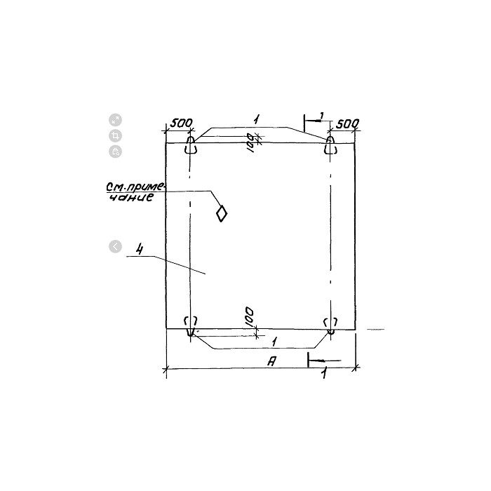
- Диаметр — варьируется от 700 до 2000 мм, что позволяет выбрать подходящий размер для конкретного типа колодца.
- Толщина — от 100 до 200 мм, что обеспечивает оптимальную устойчивость к давлению грунта и нагрузкам.
- Масса — зависит от параметров, что важно учитывать при транспортировке и монтаже.
- Прочность — изделия соответствуют стандартам ГОСТ и рассчитаны на эксплуатацию в сложных условиях.
В каталоге на сайте представлены различные модели с указанием размеров и прочностных характеристик, что позволяет легко подобрать нужные изделия для вашего проекта.
Монтаж опорных плит
Установка начинается с выравнивания дна котлована и подготовки основания, после чего плита укладывается на место, обеспечивая устойчивую основу для дальнейшей установки колодца или другой конструкции. ЖБИ-Маркет предлагает услуги доставки плит на объект, а также консультации по их установке, что позволяет клиентам сократить время на монтаж и получить надёжный результат.
Качество опорных плит от ЖБИ-Маркет
Все изделия ЖБИ-Маркет производятся в строгом соответствии с ГОСТ и проходят тщательный контроль качества. Мы используем только сертифицированные материалы, что обеспечивает изделиям прочность и устойчивость к внешним воздействиям, в том числе к перепадам температур и влажности.
Преимущества покупки опорных плит на ЖБИ-Маркет
- Выгодные цены — благодаря собственному производству, мы предлагаем конкурентные цены на всю продукцию.
- Быстрая доставка — организуем оперативную доставку плит по Киришам и Ленинградской области.
- Гарантия качества — продукция сертифицирована и проверена на соответствие ГОСТ.
- Профессиональные консультации — наши специалисты помогут рассчитать нужное количество плит, выбрать оптимальные параметры и ответить на все вопросы.
Заказ опорных плит на ЖБИ-Маркет с доставкой и консультацией
Чтобы сделать заказ, достаточно оставить заявку на сайте ЖБИ-Маркет или связаться с нашими менеджерами по телефону. В каталоге представлены все доступные модели с указанием характеристик и цен, что позволяет подобрать оптимальные изделия для вашего проекта. Мы предоставляем удобные условия заказа, организуем доставку и предлагаем профессиональные консультации по выбору и монтажу, что позволяет клиентам сократить затраты и получить качественные изделия для своих строительных нужд.









